お見積もりの際やお打ち合わせで触れるかもしれない「実施設計」という言葉。これは、店舗デザインの必要資材や費用見積もりなどを明らかにするうえで必要な工程です。
実施設計の具体的な内容や実際の図面、「基本設計」との違いなどをご紹介します。
コリドールの繁盛店開業サポート
『独立にあたって、自分の理想の店舗をつくり、繁盛店にしたい』
そんな思いを持つオーナー様に寄り添う伴走者として
弊社は20年以上静岡を中心にご評価いただいております!
>>独立開業無料相談会を実施中<<
>>日程調整はこちらよりお申込みする<<
実施設計とは
実施設計とは、店舗設計で工事前に行う最終的な図面制作の工程です。別名「詳細設計」、英語では「final design」と言われます。
部材の接合方法や設備の詳細など、実際の施工に必要な全ての情報を図面に起こす作業です。実施設計で作る図面をそのまま工事で用いるわけではありませんが、それを基に工事用図面を作るので、店舗づくりの大元となる設計図とも呼べる大切な工程です。
店舗設計に関してはこちらのページでも詳しく解説していますので、チェックしてみてくださいね。
店舗設計の流れを知りたい!完成までの基本的な流れをご紹介>>
基本設計との違い
実施設計は基本設計の次に行います。基本設計では構造や電気の配線、空調に加え必要な設備を大まかに決め、制作した図面の情報にさらに「どのような構造で、設備を組み込むのか」より細かく決定するのが実施設計です。
基本設計では施主様と施工業者の間で完成形の大まかなイメージを共有することを目的としています。
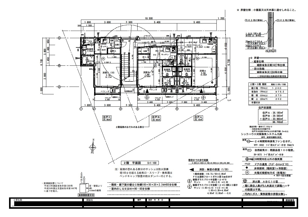
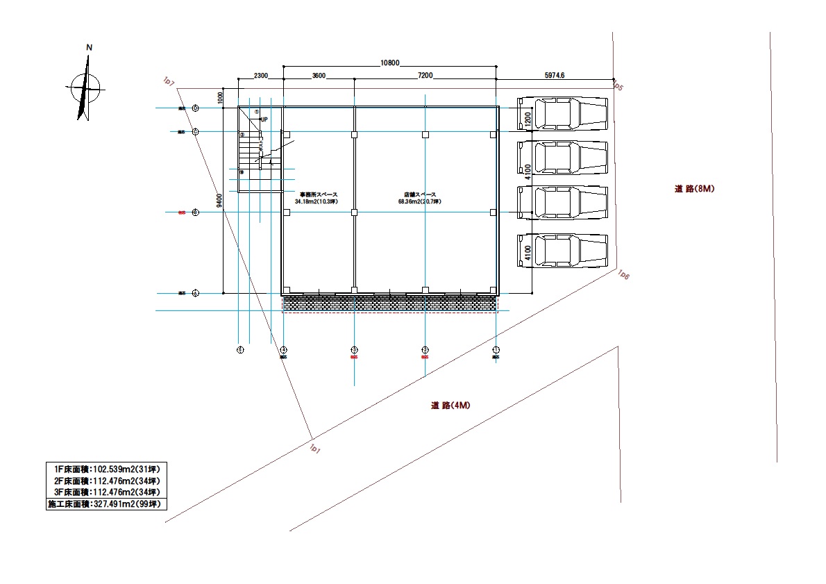
上の図は弊社で制作した基本設計図の一例です。電気、給排水、空調などの各種設備の仕様やゾーニングの詳細も、後の実施設計で確定します。
店舗デザインは「ゾーニング」が重要!売上アップに繋がるポイントをご紹介>>
実施設計は3種類
実施設計は「意匠設計」「構造設計」「設備設計」の3種類に分けられます。それぞれデザイン性、耐久性、機能性に対応するもので、より正確で精密な設計を行うために必要な分類です。
設計ごとに異なる図面を作成するため、実施設計で作る設計図も大きく分けて3種類あります。
➀意匠設計(デザイン性):
コンセプトに従った内外装の見た目に関する設計です。空調や電気の設備や構造躯体など、施工に関わる全ての情報を統括します。
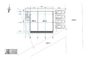
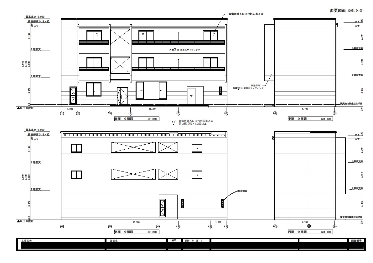
これに基づいて描かれるのが、以下のような「意匠図」です。
建物全体の形態や間取りなどの意匠(デザイン)を伝えることが目的です。意匠図の中にも、平面図、配置図、立体図など様々な種類の図面を併用することもあります。
なお、「実施設計図」は実施設計で作る設計図を総括して用いる用語ではありません。一般的に「実施設計図」と呼ぶときには、この「意匠図」を指すことが多いです。
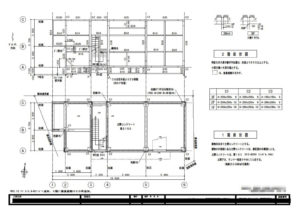
②構造設計(耐久性):
建物本体の重さへの耐久性や、地震、台風などの自然災害への安全性に関わる設計です。立地の地盤や地質を踏まえて基礎や骨組みの構造を決めます。
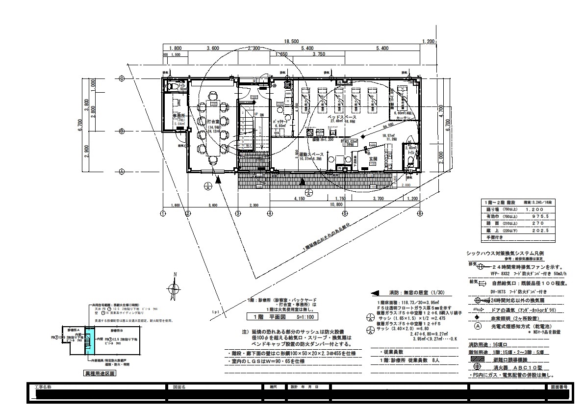
これに基づいて描かれるのが「構造図」で、柱や梁などの部材や接合部の形式などを示すために作成することが目的です。
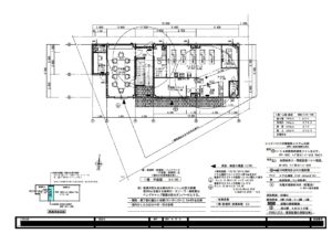
③設備設計(機能性):
下水道、ガスといった配管や、空調、換気、照明と、インフラに関する設計です。施主様のご要望に応じて風除室を設けるなど、快適な店舗空間を目指して適宜調整しています。
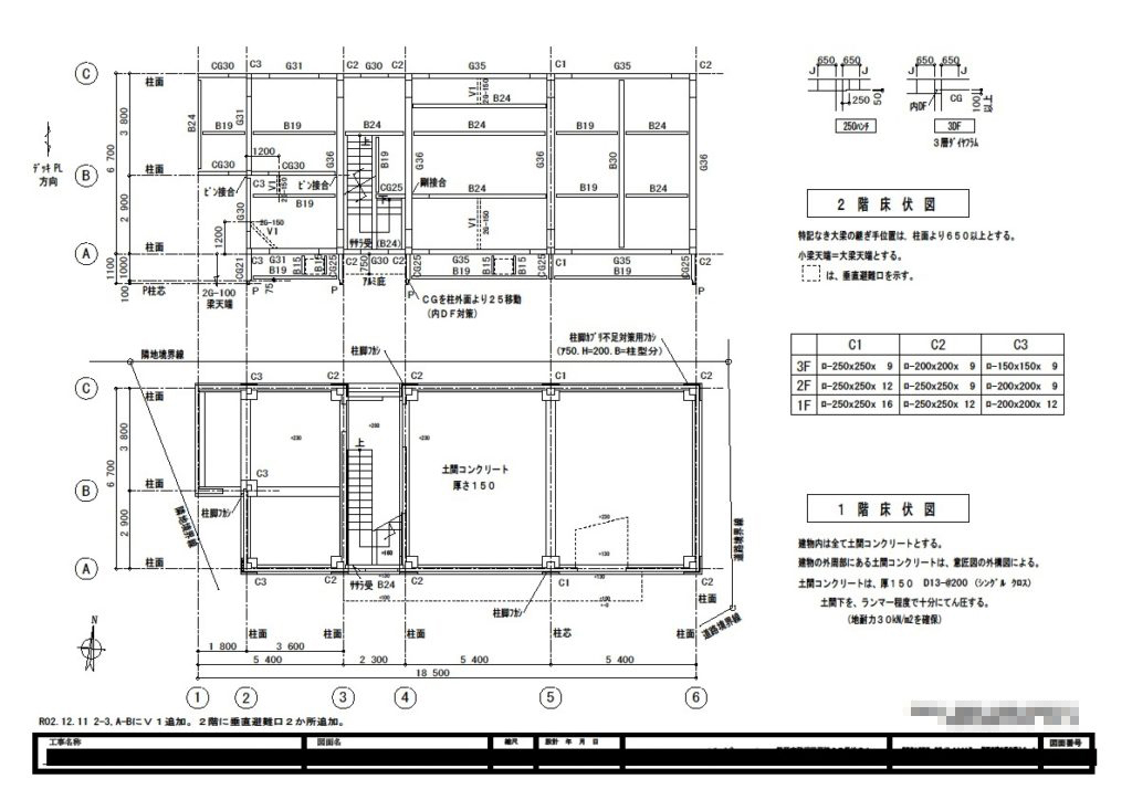
これに基づいて描かれるのが「設備図」で、水道、ガス、冷暖房などの取り付け位置や、配管・配線の経路、コンセントの数なども含めて「どのような設備と機能を持つのか」を示すものとなります。
設計図の後に施工図を作る
設計図の確定後、それを基に工事前、または工事中に施工業者が施工図を作成します。
実施設計で作る設計図は、自治体に建築許可を要請する「建築確認申請」に必要な書類です。基本設計と比べて、工事に必要な情報を詳細に示しているものの、自治体への提出書類という役割を果たします。そのため、設計図の縮尺は100分の1程度で、直接工事に用いるのには適していません。
そこで、改めて「施工図(工事のためだけに作られた、さらに詳細な図面)」を作ることが必要です。施工図では原寸図が描かれることもあります。
ここまでくると、実際の施工時とリンクをしながら、実物に反映がしやすい形が大切となってきます。
そこで、インテリアの配置や照明を考えるのにあたり、実際に物件内で型紙を置いたり、実測値を基に施工図へ反映したりするようなこともあります。
施主様が安心できる施工のために
実施設計は、施主様と共有した店舗イメージを工事に向けて具現化する大切な工程です。
実施設計の工程に入ると、工事前に行う施主様とのお打ち合わせも最終段階になります。ただ、施工開始後も施主様とのやりとりを大切にするのが当社のモットーです。
弊社では設計から施工を一括して行なっています。実際に施工をしながら設計図をより正確にしていくので、「設計図=施工図」という認識です。そうすることで設計・施工をスピーディに進められ、細かい調整もしやすくなります。これは、施工のことがわかっている設計士ならではの発想です。
また、弊社では設計しながら見積もりをしているため、より正確な見積もりを明示することができます。
実際に進めていく中で気になる点が出たり、イメージと異なるような点があったりすれば、その都度臨機応変にご対応することを心がけておりますので、お気軽にご相談ください。








